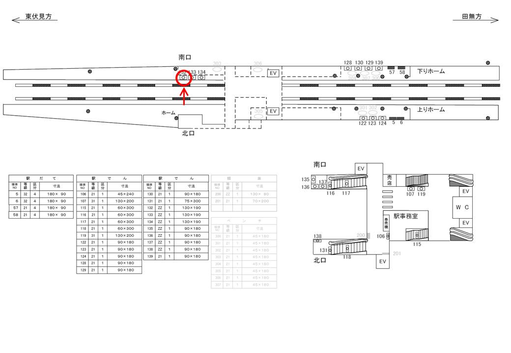
| 媒体No. | 駅でん№132 |
|---|---|
| 種類 | 電飾 |
| 広告料金 | 販売状況、料金についてはお問い合わせください |
| 期間 | 6ヶ月 |
| サイズ | 縦130cm×横190cm |
○初回費用について
駅看板は広告料金の他に画面制作費・施工費等がかかります。
費用については別途お見積もりいたします。
駅看板以外の駅ポスターやデジタルサイネージ広告、その他駅広告についてはお問い合わせください。
詳細
西武 西武柳沢駅、ホームの駅広告です。
西武新宿線下りホームの背中壁面に設置された電飾タイプの広告看板です。
上りホームから線路を挟む形で正対する位置にございます。
主に電車をお待ちになる方にご覧頂けます。
ホーム看板は待ち時間を利用し、広告宣伝を行ないます。
そのため視界に入る時間が長く、より内容を理解して頂く事を目的とした広告展開に適しております。
駅周辺の医療施設、企業案内、サービス紹介などにご利用ください。
駅看板は長期的に駅広告のご実施を検討中の方にお勧めいたします。
※西武柳沢駅看板の最新の販売状況については直接お問い合わせください。














































