| 媒体No. | 本屋口№13 |
|---|---|
| 種類 | 電飾 |
| 広告料金 | 利用状況、料金についてはお問い合わせください |
| 期間 | 6ヶ月 |
| サイズ | 縦35cm×横200cm |
○初回費用について
駅看板は広告料金の他に画面制作費・施工費等がかかります。
費用については別途お見積もりいたします。
駅看板以外の駅ポスターやデジタルサイネージ広告、その他駅広告についてはお問い合わせください。
詳細
JR日野駅、コンコースの駅広告(駅看板)です。
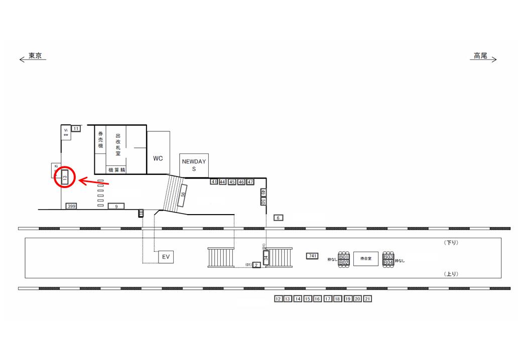
■駅看板「JR 日野駅 本屋口№13」の広告ロケーション
JR日野駅の改札の正面に設置されています。JR日野駅の改札はこちらのだけです。JR日野駅を使う方は必ずこの看板周辺を行き来します。
この広告は駅を出る方の視界に入ります。「JR日野駅を出る方」を対象とした広告位置です。
主な広告対象者のイメージは、JR日野駅に目的があって訪れた方、JR日野駅に自宅などの生活拠点を持つ方、です。
駅の出口のそばにあります。駅周辺の店舗や施設に物理的にも心理的にも近い場所にある出口付近の看板は、お店や施設までの誘導案内として利用しやすい広告です。お店の認知や場所(方向なども)をJR日野駅を使う方に知ってもらえます。
■駅看板「JR 日野駅 本屋口№13」の広告仕様
商品写真をご覧いただく通り、縦サイズが35cmと横に長い広告看板です。
写真やイラストを大きく使ったイメージ広告には不向きです。(駅構内にはもっとサイズの大きい広告がございます。ご案内いたしますので駅看板.comスタッフまでお声かけください)
内側に照明設備を備えた内照式の電飾看板です。早朝と深夜を除いて終日点灯されますので、暗くて広告が見えないということはありません。
看板躯体は常設されています。広告を利用する際は広告面のみ制作して取付作業を行ないます。看板の制作と取付は駅看板.comにて手配いたします。
広告デザインはお客様にてご用意いただくか、駅看板.comにご依頼いただくか、の二つの方法がございます。駅看板.comには交通広告の専属営業担当とデザイナーがおります。デザインについてのご相談もお気軽にどうぞ。
■日野駅で広告をお探しのお客様へ
日野駅で使える広告資料をご用意します。駅看板.comスタッフへ「日野駅の広告を検討している」とお伝えくだされば、専属担当営業より日野駅の広告資料をメールでお送りいたします。資料請求や広告のご相談は無料ですのでお気軽にお声かけください。
















































































