| 媒体No. | №2-120 |
|---|---|
| 種類 | 電照 |
| 広告料金 | 販売状況、料金についてはお問い合わせください。 |
| 期間 | 6ヵ月 |
| サイズ | 縦130㎝×横247㎝ |
○初回費用について
駅看板は広告料金の他に画面制作費・施工費等がかかります。
費用については別途お見積もりいたします。
駅看板以外の駅ポスターやデジタルサイネージ広告、その他駅広告についてはお問い合わせください。
詳細
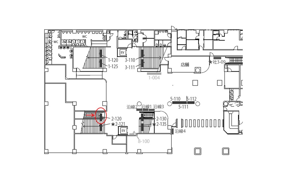
京阪樟葉駅のエスカレータ見附に設置された電照看板のご紹介です。
淀屋橋・中之島方面ホームから降車し、改札に向かう方々に訴求することができます。
駅看板は6ヶ月から掲出できる長期媒体となります。
京阪樟葉駅周辺の企業周知にお勧めとなっております。
※駅看板の最新の販売状況については直接お問い合わせください。









































