| 媒体No. | 大阪環状線西九条駅№027 |
|---|---|
| 種類 | 電飾 |
| 広告料金 | 販売状況、料金についてはお問い合わせください。 |
| 期間 | 6ヶ月 |
| サイズ | 縦95cm×横335cm |
○初回費用について
駅看板は広告料金の他に画面制作費・施工費等がかかります。
費用については別途お見積もりいたします。
駅看板以外の駅ポスターやデジタルサイネージ広告、その他駅広告についてはお問い合わせください。
詳細
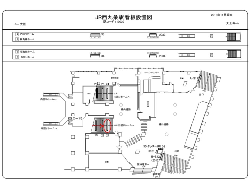
JR西九条駅、ホーム階段の駅広告(駅看板)設備のご紹介です。
西九条駅外回りホームで下車し、改札へ向かう乗客に正面から見えてくる看板です。付近の店舗や施設などへの誘導案内広告としてご活用いただけます。
西九条駅にて長期的な駅広告をご検討中の方にお勧めいたします。
※駅看板の最新の販売状況については直接お問い合わせください。最新の販売状況を確認いたします。


































































